
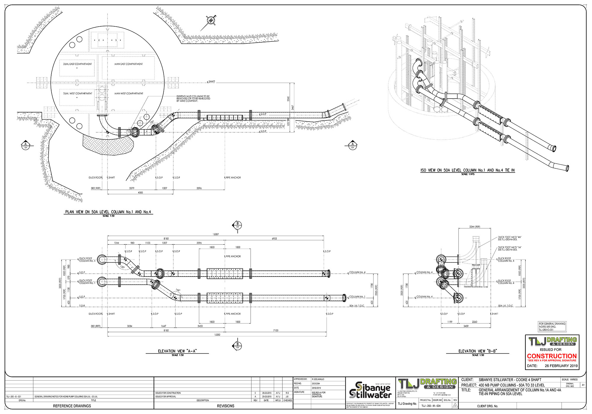
Sibanye Stillwater required the installation of three new 400NB pump columns in one of their shafts. The shaft did not have enough space against the sidewall to install these new columns.
To overcome this problem the new pump columns were placed between the rock & man compartments, something never done before. Installation and maintenance of these columns were not possible with the conveyances installed on the shaft. TLJ was assigned with the design & shop detailing of all the pipe work, bearer sets & a new pipe equipping rig. The new conveyance was to serve as a pipe equipping rig, single deck cage and shaft exam rig. With the aid of point cloud scan technology, TLJ could ensure pinpoint accuracy of all the high-pressure tie in piping. (Credit to Dr. Rafal Szejwallo in assisting TLJ with the design on the bearer sets).
Name: 3x 400NB Pump columns & pipe equipping rig.
Project deliverables: Shop detail drawings on bearer sets, piping & new pipe equipping rig.
WhatsApp us