
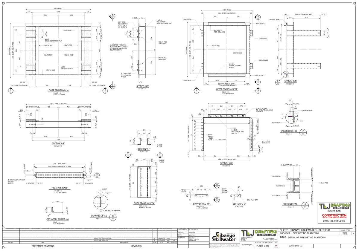
One Thursday night an earthquake caused some pipe supports to fail underground at a Kloof shaft. Sibanye Stillwater acted immediately and contacted TLJ to help resolve the problem. The next morning TLJ was on site, and immediately started working on a solution. By 11h00 Saturday morning TLJ completed the drawings for a pipe lifting platform to lift the pipes back into their original position. This is one of many occasions that TLJ worked through the night to assist a client in need.
Project deliverables: Shop detail drawings for a pipe lifting equipment. These drawings were delivered within 27 hours from being contacted.
Name: Pipe lifting platform.
WhatsApp us